Skip to content

LAZER building plans

Excellence through a combination of expertise and experience

  • About
  • Services
  • Contact
  • Projects
Posted on December 30, 2017 by Susan Botma

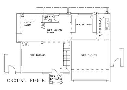
Double Storey house in Glen Green Estate, Dowerglen Ext 12

DS GLEN GREEN ESTATE, DOWERGLEN EXT 12DS GLEN GREEN EST, DOWERGLEN EXT 12 ELEVATIONGLEN GREEN GROUND FLOORGLEN GREEN FIRST FLOOR

Share this:

  • Share on X (Opens in new window) X
  • Share on Facebook (Opens in new window) Facebook

Related

Post navigation

Previous PostPrevious Three Storey House, Bassonia
Next PostNext Double Storey house in Nature Estate, Meyersdal Ext. 4
  • Facebook
  • Contact
Create a website or blog at WordPress.com
  • Subscribe Subscribed
    • LAZER building plans
    • Already have a WordPress.com account? Log in now.
    • LAZER building plans
    • Subscribe Subscribed
    • Sign up
    • Log in
    • Copy shortlink
    • Report this content
    • View post in Reader
    • Manage subscriptions
    • Collapse this bar

Loading Comments...

You must be logged in to post a comment.