Skip to content

LAZER building plans

Excellence through a combination of expertise and experience

  • About
  • Services
  • Projects
  • Contact
Posted on January 2, 2018 by Susan Botma

Double Storey house in Nature Estate, Meyersdal Ext. 4

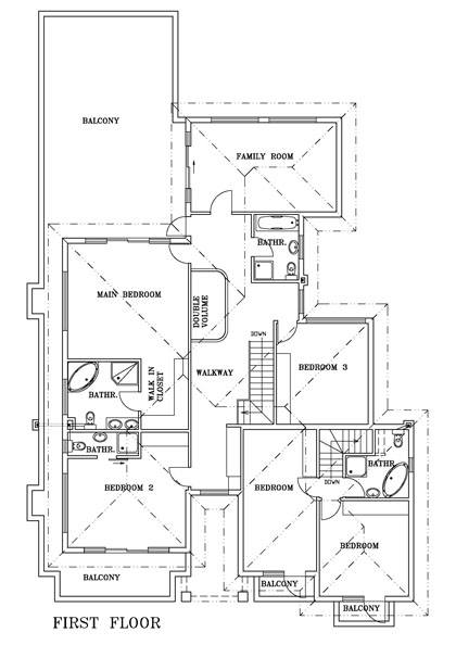
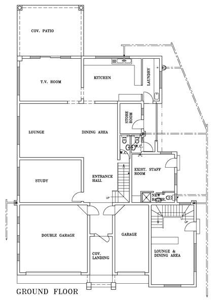
MEYERSDAL-DS HOUSE IN NATURE ESTATE, MEYERSDAL EXT 4MEYERSDAL EXT 4 GROUNDPLANMEYERSDAL FIRST FLOORMEYERSDAL EXT 4 ELEVATION

Share this:

  • Share on X (Opens in new window) X
  • Share on Facebook (Opens in new window) Facebook

Related

Post navigation

Previous PostPrevious Double Storey house in Glen Green Estate, Dowerglen Ext 12
Next PostNext Double Storey House Tijger Vallei Ext. 1.
  • Facebook
  • Contact
Create a website or blog at WordPress.com
  • Subscribe Subscribed
    • LAZER building plans
    • Already have a WordPress.com account? Log in now.
    • LAZER building plans
    • Subscribe Subscribed
    • Sign up
    • Log in
    • Copy shortlink
    • Report this content
    • View post in Reader
    • Manage subscriptions
    • Collapse this bar

Loading Comments...

You must be logged in to post a comment.